
E-Kabin HM Series wall-mounted enclosures are designed as general purpose electrical equipment enclosures for outdoor applications. They have monoblock body structure and provide IP66 protection degree. All parts that come into contact with external enviroment are made of pre-galvanized sheet steel and coated first with primer paint then with electrostatic powder paint. Welded surfaces have smooth and clean appearance.



It allows the use of bracket for wall mounting. Thanks to their reverse angle edge design above door threshold, rain water flows out of the enclosure.

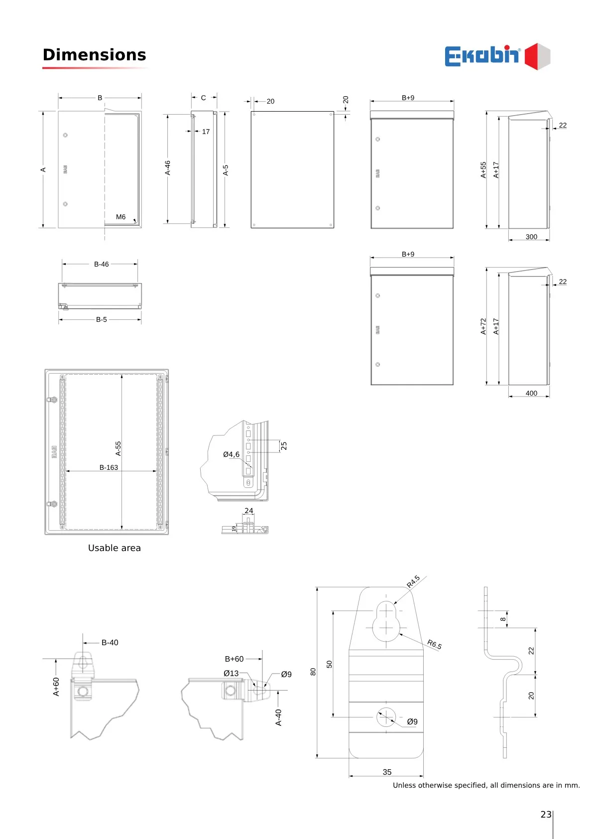
The door can be opened 130° wide with the standard hinge set, thus full access is provided during assembly

Stainless Bracket Accessory provides additional protection against corrosion.

In applications where mounting on the floor is required, plinth set accessory can be used additionally.
Type of Mounting: | Wall-Mounted |
Modularity: | Monoblock |
Application: | Outdoor |
Protection Class:
| IP 66 |
Paint: | High corrosion resistant paint according to ISO 12944-2 |
Colour: | Standard RAL 7035 (Grey Colour) |
Environmental Class: | According to EN 60721 - 3 - 3 IE37 |
Standards: | IEC 61439-1, IEC 62208, IEC 60529, IEC 62262 |
Enclosure Rated
Height (A)
|
Enclosure Rated
Width (B)
|
Enclosure Rated
Depth (C)
| Order Codes |
Lock
Quantity
|
Hinge
Quantity
|
|---|---|---|---|---|---|
700 | 500 | 300 | HM 70 50 30 | 2 | 3 |
900 | 600 | 300 | HM 90 60 30 | 2 | 3 |
1000 | 800 | 400 | HM 100 80 40 | 2 | 3 |
1200 | 800 | 400 | HM 120 80 40 | 2 | 3 |


Lorem ipsum dolor, sit amet consectetur adipisicing elit. Similique quod deleniti voluptatibus aliquam! Harum asperiores, repudiandae exercitationem esse numquam sit. Dolorum libero omnis quam eligendi impedit commodi inventore, praesentium eaque!