
E-Kabin XM Series wall mounted stainless electrical enclosures are designed as general purpose electrical equipment enclosures for indoor and outdoor applications. They have monoblock body structure and provide IP66 protection degree. Standard production does not include painting process. However, custom-made production, varnished or painted in the desired RAL code is possible. XM Series stainless-steel enclosures can be produced with AISI 304 or 316 grade raw material. Plastic lock is used in XM Series. Optionally, a lock made of 304 or 316 grade stainless-steel can also be used. All E-Kabin interior accessories are designed to be suitable for use in stainless-steel enclosures as well. While keeping standard product design unchanged, size modification, material thickness modification and cut-outs can be applied if requested.

Foam-in-place gasket, does not lose its elasticity over time and provides protection against dust and water.

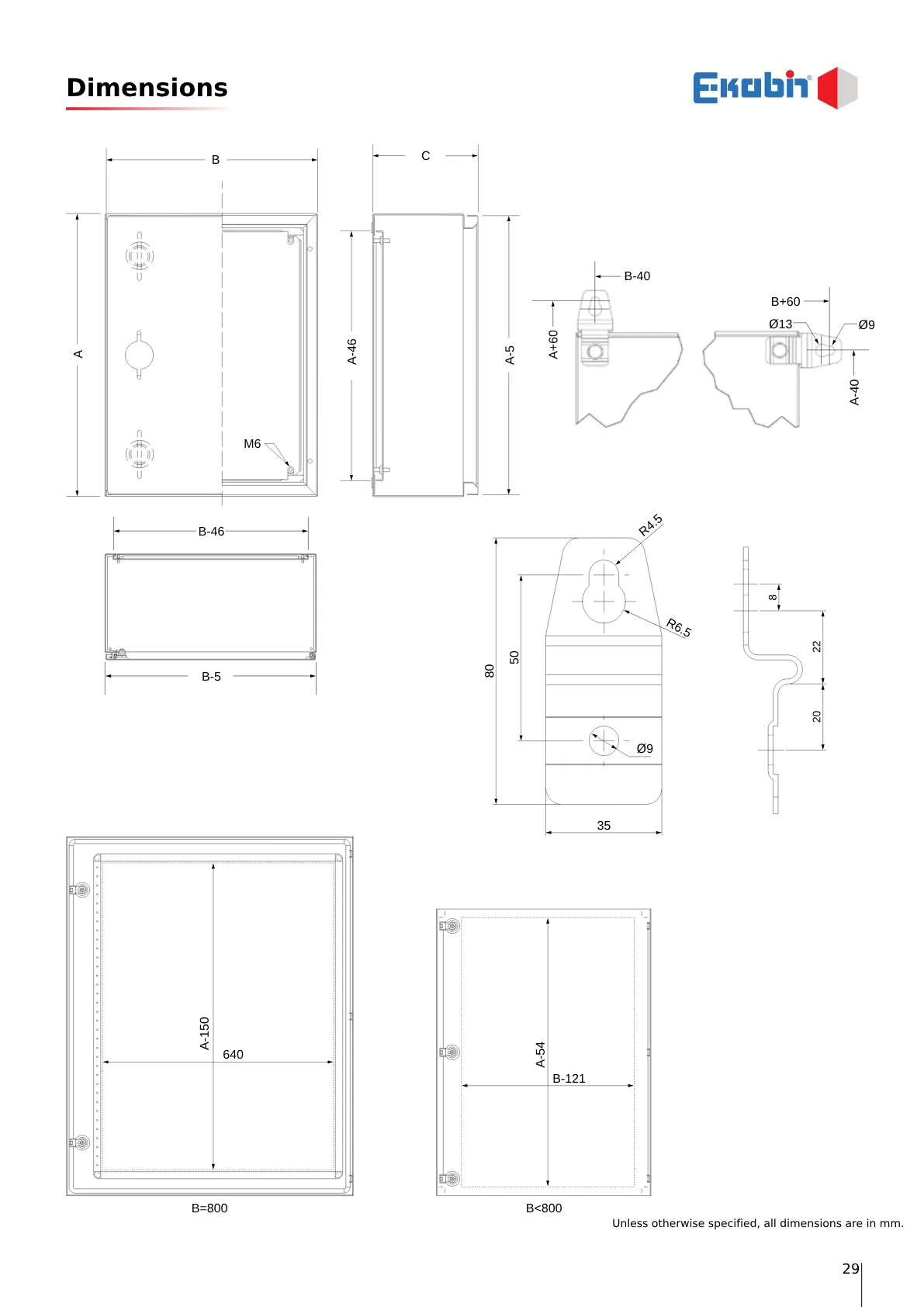
It allows the use of bracket for wall mounting. Thanks to their reverse angle edge design above door threshold, rain water flows out of the enclosure.

Instead of plastic lock, which has high chemical resistance, optionally AISI 316 grade stainless-steel lock can be used. Mounted AISI 316 grade lock do not exceed the door level.

Non-standard, custom size manufacturing is possible. * For details, you can get information from your Customer Representative.

Custom-made cut-out processing on the door andbody is applicable.

With bracket set enclosure mounting on the wall canbe done easily and quickly. Thanks to 90° swivel featureof the bracket, it’s positioning can be chosen eitherhorizontally or vertically. Bracket set is not included instandard supply content, it should be ordered separately.

In the production of stainless-steel enclosures, the welding process is applied in a way that does not leave any traces. Thus, clean and smooth surface appearance has been provided for welded surfaces.
Type of Mounting: | Wall-Mounted |
Modularity: | Monoblock |
Application: | Indoor, Outdoor |
Protection Class:
| IP 66 |
Environmental Class: | According to EN 60721 - 3 - 3 IE37 |
Standards: | IEC 61439-1, IEC 62208, IEC 60529, IEC 62262 |
Material: | AISI 304 or 316 grade stainless-steel |
Lock Set :
|
Plastic - standard,
Stainless-steel - optional
|

Enclosure Rated
Height (A)
| Enclosure Rated Width (B) | Enclosure Rated Depth (C) | Order Codes (304) | Order Codes (316) |
Lock
Quantity
|
Hinge
Quantity
|
|---|---|---|---|---|---|---|
400 | 300 600
| 200 200
| XM 40 30 20 D 304 XM 40 60 20 D 304
|
XM 40 30 20 D 316
XM 40 60 20 D 316
| 1 1
| 2 2
|
500 | 400 | 200 | XM 50 40 20 D 304 | XM 50 40 20 D 316 | 1 | 2 |
600 | 400 600
| 200 300
| XM 60 40 20 D 304 XM 60 60 30 D 304
|
XM 60 40 20 D 316
XM 60 60 30 D 316
| 1 1
| 2 2
|
700 | 500 500
| 200 300
| XM 70 50 20 D 304 XM 70 50 30 D 304
|
XM 70 50 20 D 316
XM 70 50 30 D 316
| 1 1
| 2 2
|
800 | 600 600
800
| 200 300
200
| XM 80 60 20 D 304 XM 80 60 30 D 304
XM 80 80 20 D 304
|
XM 80 60 20 D 316
XM 80 60 30 D 316
XM 80 80 20 D 316
| 2 2
2
| 3 3
3
|
1000 | 600 600
800
| 200 300
200
| XM 100 60 20 D 304 XM 100 60 30 D 304
XM 100 80 20 D 304
|
XM 100 60 20 D 316
XM 100 60 30 D 316
XM 100 80 20 D 316
| 2 2
2
| 3 3
3
|
1200 | 600 | 300 | XM 120 60 30 D 304 | XM 120 60 30 D 316 | 2 | 3 |

Enclosure Rated Height (A) | Enclosure Rated Width (B) | Enclosure Rated Depth (C) | Order Codes (304) | Order Codes (316) | Lock Quantity |
Hinge Quantity
|
|---|---|---|---|---|---|---|
400 | 300 600
| 200 200
| XM 40 30 20 AC 304 XM 40 60 20 AC 304
|
XM 40 30 20 AC 316
XM 40 60 20 AC 316
| 1 1
| 2 2
|
500 | 400 | 200 | XM 50 40 20 AC 304 | XM 50 40 20 AC 316 | 1 | 2 |
600 | 400 600
| 200 300
| XM 60 40 20 AC 304 XM 60 60 30 AC 304
|
XM 60 40 20 AC 316
XM 60 60 30 AC 316
| 1 1
| 2 2
|
700 | 500 500
| 200 300
| XM 70 50 20 AC 304 XM 70 50 30 AC 304
|
XM 70 50 20 AC 316
XM 70 50 30 AC 316
| 1 1
| 2 2
|
800 | 600 600
800
| 200 300
200
| XM 80 60 20 AC 304 XM 80 60 30 AC 304
XM 80 80 20 AC 304
|
XM 80 60 20 AC 316
XM 80 60 30 AC 316
XM 80 80 20 AC 316
| 2 2
2
| 3 3
3
|
1000 | 600 600
800
| 200 300
200
| XM 100 60 20 AC 304 XM 100 60 30 AC 304
XM 100 80 20 AC 304
|
XM 100 60 20 AC 316
XM 100 60 30 AC 316
XM 100 80 20 AC 316
| 2 2
2
| 3 3
3
|
1200 | 600 | 300 | XM 120 60 30 AC 304 | XM 120 60 30 AC 316 | 2 | 3 |

Lorem ipsum dolor, sit amet consectetur adipisicing elit. Similique quod deleniti voluptatibus aliquam! Harum asperiores, repudiandae exercitationem esse numquam sit. Dolorum libero omnis quam eligendi impedit commodi inventore, praesentium eaque!