Arama Yap

E-Kabin HM Serisi duvar tipi elektrik panoları harici uygulamalar için genel kullanıma yönelik elektrik ekipmanları mahfazası olarak tasarlanmıştır. Kullanım yeri harici uygulamalar olan ürün monoblok yapıda ve IP66 koruma sınıfındadır. Dış ortam ile temas halinde olan tüm aksamlarda galvaniz sac üzerine önce astar boya ve üzerine elektrostatik toz boya uygulanmaktadır. Kaynak yüzeyleri pürüzsüz ve temiz görünüme sahiptir.

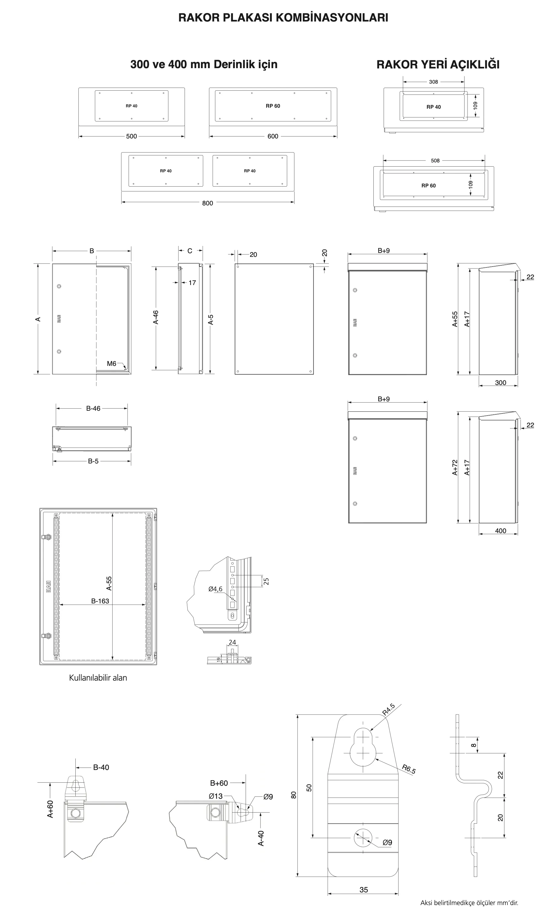
Standart olarak paslanmaz çelik malzemeden mamul menteşe gövdesi ve pimi kullanılmaktadır.

Kapı üzerine yerinde dökülen poliüretan conta zamanla esnekliğini kaybetmez, toz ve suya karşı koruma sağlar.

Duvara montaj yapılması istenen durumlarda braket kullanılmasına imkan sağlar. Eşik bölgelerinde sahip oldukları ters açılı kenar tasarımları sayesinde süzülen yağmur sularını pano dışına yönlendirir.

Kapı standart menteşe ile 130° açılabilir ve içinde çalışılması gereken durumlarda kolaylık sağlar.

Paslanmaz Braket Aksesuarı sayesinde korozyona karşı ilave koruma sağlanır.

Zemin üzerine montaj yapılması istenen uygulamalarda ilave olarak seçilebilecek baza takımı aksesuarı kullanılabilir.
Montaj Şekli: | Duvar Tipi |
Modülerlik: | Monoblok |
Kullanım Yeri: | Harici |
Koruma Sınıfı: | IP 66 |
Boya: | ISO 12944-2’ye göre yüksek korozyon dayanımlı boya |
Renk: | standart RAL 7035 (Gri renk) |
Çevre Şartları Sınıfı: | EN 60721 - 3 - 3’e göre IE37 |
Uygun Olduğu Standartlar: | IEC 61439-1, IEC 62208, IEC 60529, IEC 62262 |
Pano Anma Yüksekliği (A) | Pano Anma Genişliği (B) | Pano Anma Derinliği (C) | Sipariş Kodları | Kilit Sayısı | Menteşe Sayısı |
|---|---|---|---|---|---|
700 | 500 | 300 | HM 70 50 30 | 2 | 3 |
900 | 600 | 300 | HM 90 60 30 | 2 | 3 |
1000 | 800 | 400 | HM 100 80 40 | 2 | 3 |
1200 | 800 | 400 | HM 120 80 40 | 2 | 3 |

Lorem ipsum dolor, sit amet consectetur adipisicing elit. Similique quod deleniti voluptatibus aliquam! Harum asperiores, repudiandae exercitationem esse numquam sit. Dolorum libero omnis quam eligendi impedit commodi inventore, praesentium eaque!