Arama Yap

E-Kabin HS Serisi dikili tip elektrik panoları harici uygulamalar için genel kullanıma yönelik elektrik ekipmanları mahfazası olarak tasarlanmıştır. Yan yana birleştirilerek genişletilmeye uygun olan ürün kapı seçimine bağlı olarak IP55 veya IP41 koruma sınıfında üretilmektedir. Dış ortam ile temas halinde olan tüm aksamlar önce astar boya uygulanıp, üzerine elektrostatik toz boya kaplanmaktadır.

Modüler yapı - yan yana çoğaltabilme
Modüler iskelet ve çatı yapısı sayesinde çoklu kombinasyonlar için yan yana çoğaltılarak montaj imkanı sağlanmaktadır. Ayrıca;

Ortak modüler iç aksesuarlar
Montaj profilleri, montaj plakaları, ön örtü sistemi vb.
gibi iç aksesuarların birçoğu tüm E-Kabin panolarında ortak olarak
kullanılmaktadır.

Çatı altına fan imkanı
Çatı altında kullanılan fana pano içerisinden erişim
yapılarak servis ve bakım kolaylığı sağlar.

Üst askı imkanı
Taşıma halkası panonun üzerinde standart olarak
konumlandırılmıştır. Bu ürün panoyu tüm yüküyle birlikte güvenli ve rahat bir
şekilde üstten kaldırılarak taşınmasına imkan vermektedir.

Üst üste monte edilebilir baza
Modüler baza yapısı üst üste montaj yapılarak panonun
yükseltilmesine imkan sağlar.

Paslanmaz kilit aksesuarı
Standart olarak kullanılan kimyasal dayanımı yüksek
sarkaç kollu kilit sistemi yerine 316 kalite paslanmaz çelikten imal edilmiş
kilit sistemi seçilebilir.
Montaj Şekli : | Dikili Tip |
Modülerlik : | Modüler |
Kullanım Yeri : | Harici |
Koruma Sınıfı : | IP55, IP41 Ön kapı tipine bağlı olarak |
Boya : | ISO 12944-2’ye göre yüksek korozyon dayanımlı boya |
Renk : | Standart RAL 7035 (Gri renk) |
Çevre Şartları Sınıfı : | EN 60721 - 3 - 3’e göre IE37 |
Uygun Olduğu Standartlar : | IEC 61439-1, IEC 62208, IEC 60529, IEC 62262 |

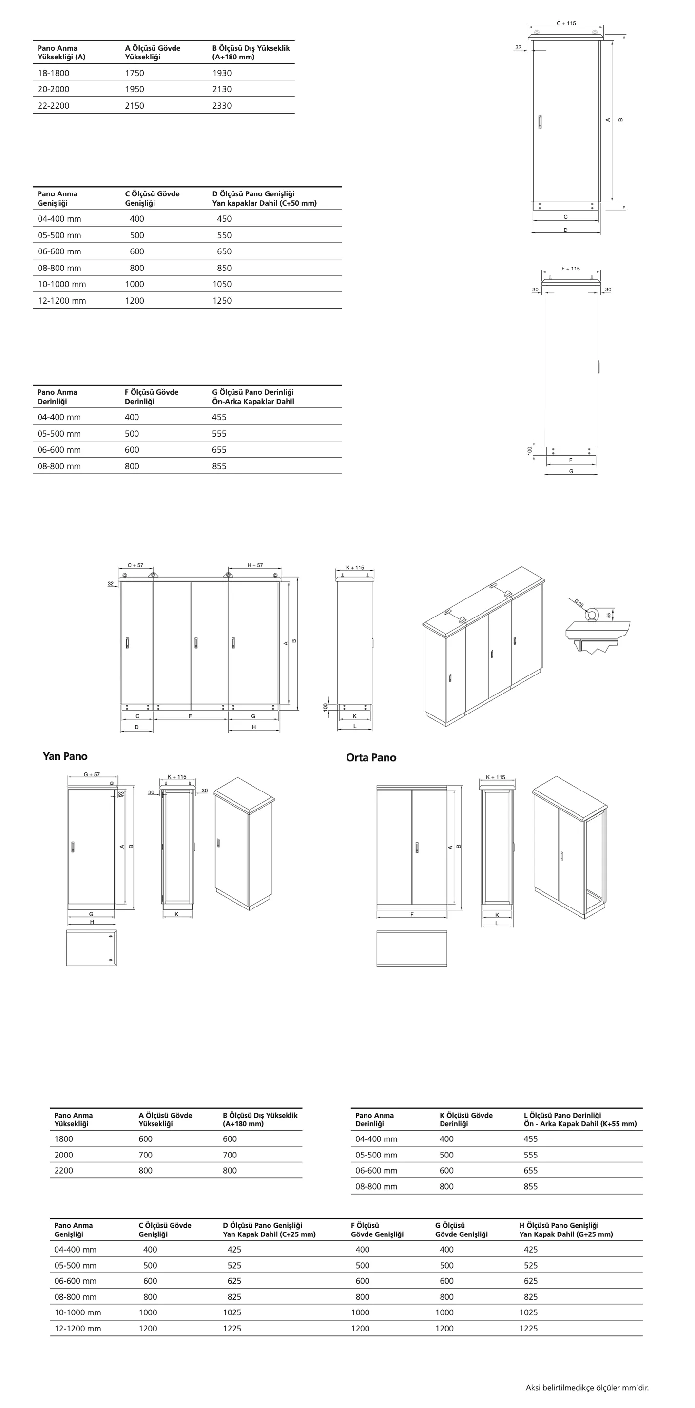
Pano Anma Yüksekliği (A) | Pano Anma Genişliği (B) | Pano Anma Derinliği (C) |
|---|---|---|
1800 | 600 | 600 |
2000 | 700 | 700 |
2200 | 800 | 800 |
1000 | ||
1200 |

Lorem ipsum dolor, sit amet consectetur adipisicing elit. Similique quod deleniti voluptatibus aliquam! Harum asperiores, repudiandae exercitationem esse numquam sit. Dolorum libero omnis quam eligendi impedit commodi inventore, praesentium eaque!