Arama Yap

E-Kabin O ve M Serisi duvar tipi elektrik panoları genel kullanıma yönelik elektrik ekipmanları mahfazası olarak tasarlanmıştır. Kullanım yeri dahili uygulamalar olan ürün monoblok yapıda ve IP66 koruma sınıfındadır. Gövde galvaniz sac üzerine epoksi polyester toz boyalı yapıdadır ve iç aksamı galvaniz saçtan üretilmiştir.

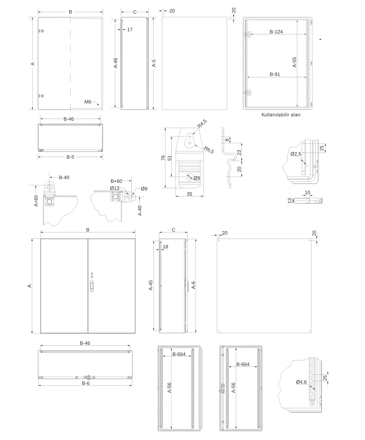
Kapının mukavemetini arttıran kapı içi profilleri, kablo, kablo kanalı vb. bağlantı ekipmanlarının da montaj yapılmasına imkan sağlar.

Kapı üzerine yerinde dökülen poliüretan conta zamanla esnekliğini kaybetmez, toz ve suya karşı koruma sağlar.

İstenildiğinde kilit yuvasına tutturulabilir şekilde tasarlanmış olan anahtar, kilit tutamağı olarak da kullanılabilir.

Kapı standart menteşe ile 130° açılabilir ve içinde çalışılması gereken durumlarda kolaylık sağlar.

Aksesuar olarak seçilebilen menteşe takımı ile kapağın 180° açılması sağlanabilir.

İhtiyaç duyulduğunda kapı açılma yönü değiştirilebilir.

Braket takımı ile kutunun duvara montajı kolay ve hızlı bir şekilde yapılabilir. Braket takımı standart teslimat kapsamına dahildir.
Montaj Şekli: | Duvar Tipi |
Modülerlik: | Monoblok |
Kullanım Yeri: | Dahili |
Koruma Sınıfı: | IP 66 |
Boya: | Epoksi - Polyester Toz Boya |
Renk: | Standart RAL 7035 (Gri renk) |
Çevre Şartları Sınıfı: | EN 60721 - 3 - 3’e göre IE32 |
Uygun Olduğu Standartlar: | IEC 61439-1, IEC 62208 IEC 60529, IEC 62262 |
Pano Anma Yüksekliği (A) | Pano Anma Genişliği (B) | Pano Anma Derinliği (C) | Sipariş Kodları | Kilit Sayısı | Menteşe Sayısı |
|---|---|---|---|---|---|
300 | 200 300 | 150 200 | EO 30 20 15 EO 30 30 20 | 1 | 2 |
400 | 300 300 400 | 150 200 200 | EO 40 30 15 EO 40 30 20 EO 40 40 20 | 1 1 1 | 2 2 2 |
500 | 350 350 400 500 | 150 200 200 200 | EO 50 35 15 EO 50 35 20 EO 50 40 20 EO 50 50 20 | 1 1 1 1 | 2 2 2 2 |
600 | 400 400 400 500 600 600 | 150 200 300 300 200 250 | EO 60 40 15 EO 60 40 20 EO 60 40 30 EO 60 50 30 EO 60 60 20 EO 60 60 25 | 1 1 1 1 1 1 | 2 2 2 2 2 2 |
700 | 500 500 | 200 300 | EO 70 50 20 EO 70 50 30 | 2 2 | 3 3 |
800 | 600 600 600 | 200 250 300 | EO 80 60 20 EO 80 60 25 EO 80 60 30 | 2 2 2 | 3 3 3 |
Pano Anma Yüksekliği (A) | Pano Anma Genişliği (B) | Pano Anma Derinliği (C) | Sipariş Kodları | Kilit Sayısı | Menteşe Sayısı |
|---|---|---|---|---|---|
800 | 800 | 300 | EM 80 80 30 D | 2 | 3 |
900 | 600 | 300 | EM 90 60 30 D | 2 | 3 |
1000 | 600 700 800 800 | 300 300 300 400 | EM 100 60 30 D EM 100 70 30 D EM 100 80 30 D EM 100 80 40 D | 2 2 2 2 | 3 3 3 3 |
1200 | 600 800 800 | 300 300 400 | EM 120 60 30 D EM 120 80 30 D EM 120 80 40 D | 2 2 2 | 3 3 3 |
Pano Anma Yüksekliği (A) | Pano Anma Genişliği (B) | Pano Anma Derinliği (C) | Sipariş Kodları |
|---|---|---|---|
1000 | 1000 | 300 | EM 100 100 30 |
1200 | 1000 1000 1200 | 300 400 300 | EM 120 100 30 EM 100 100 40 EM 120 120 30 |



Lorem ipsum dolor, sit amet consectetur adipisicing elit. Similique quod deleniti voluptatibus aliquam! Harum asperiores, repudiandae exercitationem esse numquam sit. Dolorum libero omnis quam eligendi impedit commodi inventore, praesentium eaque!