Arama Yap

E-Kabin K Serisi monoblok konsollar genel kullanıma yönelik elektrik ekipmanları mahfazası olarak tasarlanmışlardır. Kullanım yeri dahili uygulamalar olan ürün monoblok yapıda ve IP55 koruma sınıfındadır. Gövde epoksi polyester toz boya uygulanmış galvanizli sactan imal edilmiştir.

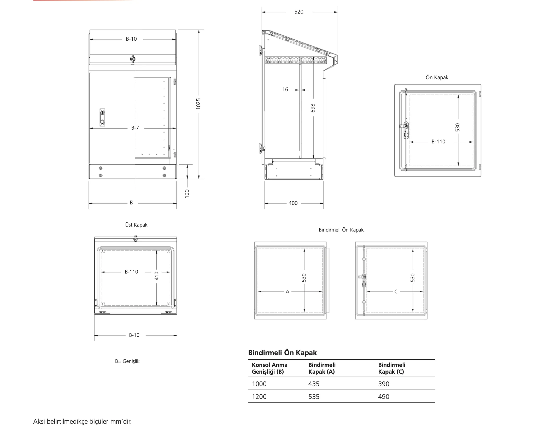
Menteşeli arka kapak montaj kolaylığı sağlar.

Montaj profillerinin konumu, yan yüzeylerin en yüksek oranda kullanımına imkan sağlar.

Kapağın mukavemetini arttıran kapak içi profilleri, kablo, kablo kanalı vb. bağlantı ekipmanlarının da sabitlenmesine imkan sağlar.

Kapı üzerine yerinde dökülen poliüretan conta zamanla esnekliğini kaybetmez, toz ve suya karşı koruma sağlar.

İkinci montaj plakasının montajına imkan sağlamaktadır. İkinci montaj plakası aksesuar olarak ayrıca sipariş edilmelidir.

Yan yüzeydeki montaj profili sayesinde montaj plakasına derinlikte hareket etme imkanı sağlar.

Her iki kenara monte edilmiş piston güvenli bir şekilde kapak açma, kapama veya açık tutma imkanı sağlar

Yüksek koruma sınıfına uygun olarak tasarlanmış alt örtü düzeneği, örtü parçalarının kaydırılarak kullanılabilme imkanı sağlamaktadır. Bunların üzerine aksesuar olarak tedarik edilebilen fırçalar da kolayca sabitlenebilmektedir.
Montaj Şekli: | Dikili Tip |
Modülerlik : | Monoblok |
Kullanım Yeri: | Dahili |
Koruma Sınıfı: | IP 55 |
Boya: | Epoksi - Polyester Toz Boya |
Renk: | Standart RAL 7035 (Gri renk) |
Çevre Şartları Sınıf: | EN 60721 - 3 - 3’e göre IE32 |
Uygun Olduğu Standartlar: | IEC 61439-1, IEC 62208 IEC 60529, IEC 62262
|
Konsol Anma Genişliği (B) | Sipariş Kodları |
|---|---|
600 | EK 0604 |
800 | EK 0804 |
1000 | EK 1004 |
1200 | EK 1204 |
