Arama Yap

E-Kabin XT Serisi paslanmaz terminal kutuları genel kullanıma yönelik elektrik ekipmanları mahfazası olarak tasarlanmıştır. Kullanım yeri dahili uygulamalar olan ürün monoblok yapıda ve IP66 koruma sınıfındadır; boyasız olarak üretilmektedir. Ancak özel imalat olarak istenilen RAL kodlarında boyalı veya vernikli imalat yapılabilmektedir.



Kutu ağız açıklığının tasarımı montaj alanı kayıplarını engelleyerek kutu içerisine erişim ve montaj kolaylığı sağlar.

Kapak üzerine yerinde dökülen poliüretan conta zamanla esnekliğini kaybetmez, toz ve suya karşı koruma sağlar.

Montaj plakasının tasarımı kutu içi kullanılabilir alanı en az yer kaybı ile değerlendirmeye imkan sağlar.

Yüksek adetli siparişler için standart dışı boyutlarda imalat mümkündür.

Kapıda ve gövdede siparişe özel delik açtırma imkanı.

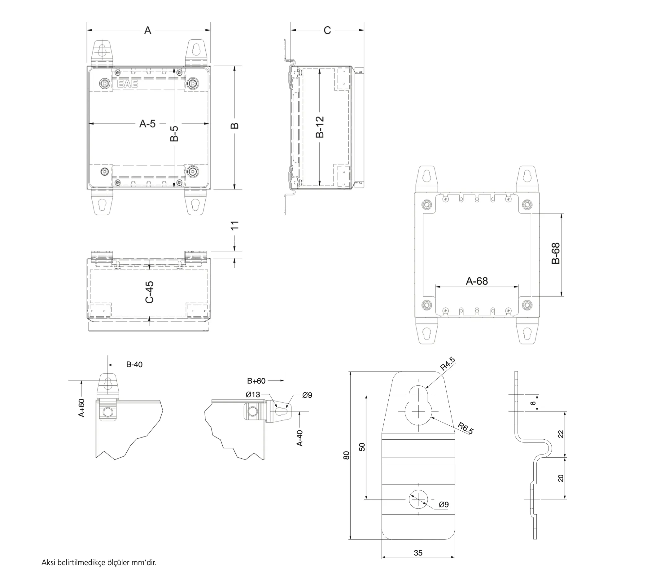
Braket takımı ile kutunun duvara montajı kolay ve hızlı bir şekilde yapılabilir. Braketin 90° çevrilerek kullanım kolaylığı sayesinde montaj esnekliği sağlanır. Standart kutu içeriğinde bulunmayan braket seti istendiğinde ayrıca sipariş edilmelidir.
Montaj Şekli : | Duvar Tipi |
Modülerlik : | Monoblok |
Kullanım Yeri : | Dahili |
Koruma Sınıfı : | IP66 |
Çevre Şartları Sınıfı : | EN 60721 - 3 - 3’e göre IE33 |
Uygun Olduğu Standartlar : | IEC 62208, IEC 60529, IEC 62262 |
Malzeme : | 304 veya 316 kalite paslanmaz çelik - standart |
Pano Anma Yüksekliği (B) | Pano Anma Genişliği (A) | Pano Anma Derinliği (C) | Sipariş Kodları (304) | Sipariş Kodları (304) | Sipariş Kodları (316) |
|---|---|---|---|---|---|
200 | 200 | 120 | XT 20 20-304 KK | XT 20 20-304 PK | XT 20 20-316 PK |
200 | 300 | 120 | XT 20 30-304 KK | XT 20 30-304 PK | XT 20 30-316 PK |
200 | 400 | 120 | XT 20 40-304 KK | XT 20 40-304 PK | XT 20 40-316 PK |
300 | 300 | 120 | XT 30 30-304 KK | XT 30 30-304 PK | XT 30 30-316 PK |
300 | 400 | 120 | XT 30 40-304 KK | XT 30 40-304 PK | XT 30 40-316 PK |
400 | 400 | 120 | XT 40 40-304 KK | XT 40 40-304 PK | XT 40 40-316 PK |

Lorem ipsum dolor, sit amet consectetur adipisicing elit. Similique quod deleniti voluptatibus aliquam! Harum asperiores, repudiandae exercitationem esse numquam sit. Dolorum libero omnis quam eligendi impedit commodi inventore, praesentium eaque!
Lorem ipsum dolor, sit amet consectetur adipisicing elit. Similique quod deleniti voluptatibus aliquam! Harum asperiores, repudiandae exercitationem esse numquam sit. Dolorum libero omnis quam eligendi impedit commodi inventore, praesentium eaque!
Lorem ipsum dolor, sit amet consectetur adipisicing elit. Similique quod deleniti voluptatibus aliquam! Harum asperiores, repudiandae exercitationem esse numquam sit. Dolorum libero omnis quam eligendi impedit commodi inventore, praesentium eaque!